Нагреватель электрический для круглых и прямоугольных каналов NEK, NEP

Соответствует BIM-стандарту 2.0
Описание

Модели для Autodesk Revit соответствуют ФОП Revit и BIM Object Guide 2017.

Модели для nanoCAD BIM Вентиляция согласованы непосредственно разработчиками nanoCAD.

ЭЛЕКТРИЧЕСКИЕ ВОЗДУХОНАГРЕВАТЕЛИ ДЛЯ КРУГЛЫХ КАНАЛОВ
Электрические канальные воздухонагреватели NEK для круглых каналов предназначены для подогрева воздуха и других невзрывоопасных газовых смесей в системах вентиляции и кондиционирования воздуха.

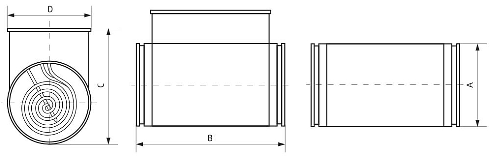
КОНСТРУКЦИЯ

Нагреватели NEK представлены шестью типоразмерами разной мощности. Корпус и коммутационная коробка изготовлены из оцинкованного стального листа. Нагревательные стержни трубчатого типа изготовлены из нержавеющей стали и имеют спиралевидную форму.

Нагреватели рассчитаны на минимальную скорость воздушного потока 1,5 м/с.

Все круглые канальные воздухонагреватели мощностью 12 кВт и более конструктивно имеют две равные по мощности ступени.

Круглые канальные воздухонагреватели мощностью более 12 кВт выполняют с двумя равными ступенями мощности.

Степень защиты корпуса — IP40.


ЭЛЕКТРИЧЕСКИЕ ВОЗДУХОНАГРЕВАТЕЛИ ДЛЯ ПРЯМОУГОЛЬНЫХ КАНАЛОВ
Электрические канальные воздухонагреватели NEР для прямоугольных каналов предназначены для подогрева воздуха и других невзрывоопасных газовых смесей в системах вентиляции и кондиционирования воздуха.

КОНСТРУКЦИЯ

Нагреватели NEP представлены десятью типоразмерами разной мощности. Корпус и коммутационная коробка изготовлены из оцинкованного стального листа. Нагревательные стержни трубчатого типа изготовлены из нержавеющей стали и укреплены алюминиевыми распорками для предотвращения вибраций.

Нагреватели рассчитаны на минимальную скорость воздушного потока 1,5 м/с.

Степень защиты корпуса — IP40.

Параметры
Категория
Отопление, вентиляция и кондиционирование
Категория
Оборудование вентиляции и кондиционирования
Материал
Сталь оцинкованная
Материал
Сталь нержавеющая
Материал
Резина EPDM
Материал
Медь
Другие модели производителя
Модели других производителей